office
office 4f5
office 4f5
Location: Seoul Jung-gu Supyoro 6gil1 GyumYong Building 4f 501
Year: 2023.01
Type: Office
Area: 40m²
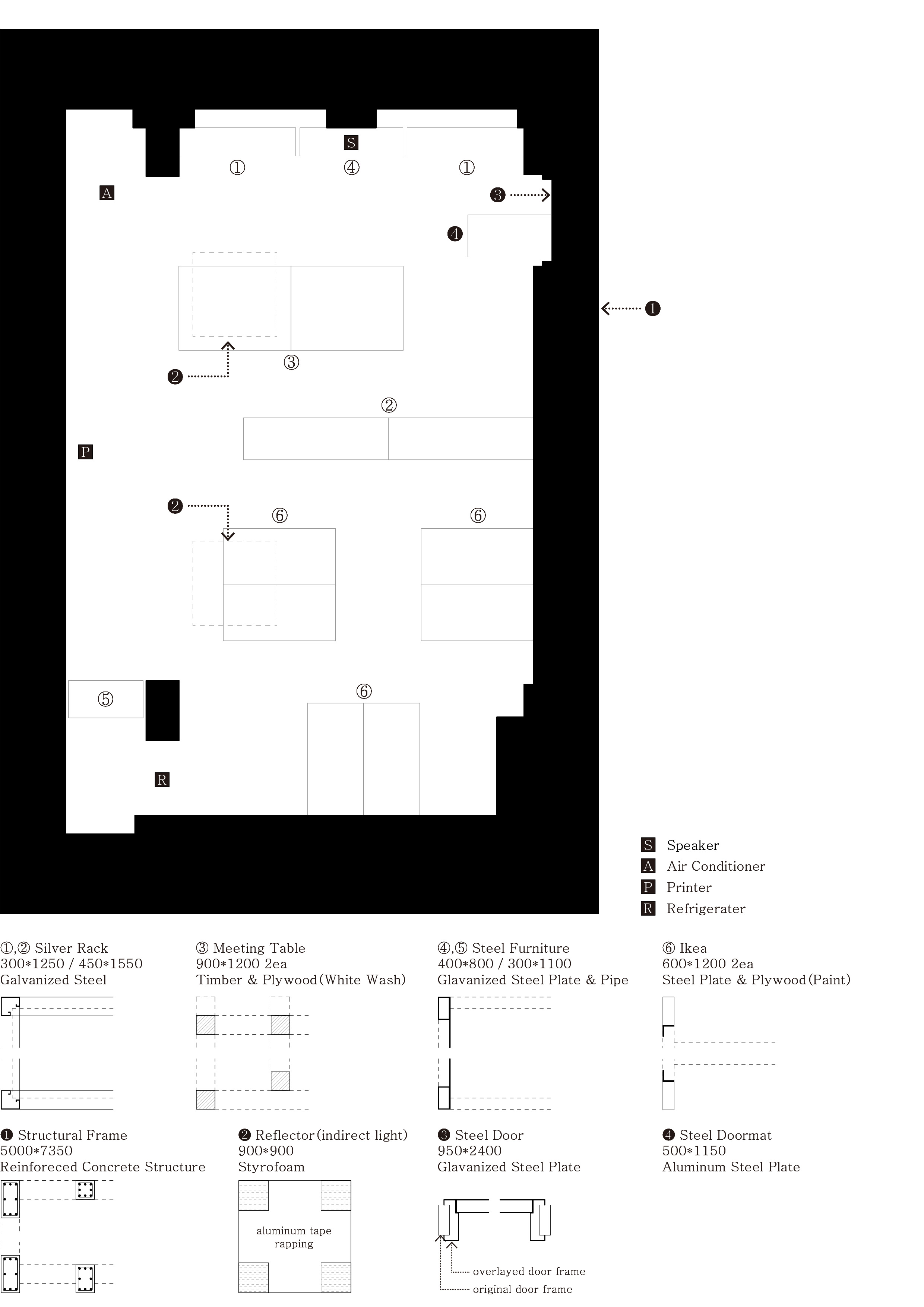
White paint dresses the space which entegrates unassembled space messed with asymmetric structure, mechanical pipes and electric lines on the wall. Nothing to do with this perfect white box. Metalic furnitures balance the materiality between sharpness and boldness, matteness and glossness.
Year: 2023.01
Type: Office
Area: 40m²
White paint dresses the space which entegrates unassembled space messed with asymmetric structure, mechanical pipes and electric lines on the wall. Nothing to do with this perfect white box. Metalic furnitures balance the materiality between sharpness and boldness, matteness and glossness.
office 4f5
White paint dresses the space which entegrates unassembled space messed with asymmetric structure, mechanical pipes and electric lines on the wall. Nothing to do with this perfect white box. Metalic furnitures balance the materiality between sharpness and boldness, matteness and glossness.
800mm(W) x 1350mm(H) x 400mm(D)
steel pipe + garvanized steel plate
Furniture with three different layers. Open shelves for dining glasses at the top, 4 drawers for dishes and space for wine cellar in the middle, space for model making materials at the bottom.
steel pipe + garvanized steel plate
Furniture with three different layers. Open shelves for dining glasses at the top, 4 drawers for dishes and space for wine cellar in the middle, space for model making materials at the bottom.
1000mm(W) x 750mm(H) x 300mm(D)
steel pipe + garvanized steel plate
Furniture for stationary. 10 drawers at the top, 6 open shelves at the bottom. the scale carfully matched with silver rack furniture on the both sides.
steel pipe + garvanized steel plate
Furniture for stationary. 10 drawers at the top, 6 open shelves at the bottom. the scale carfully matched with silver rack furniture on the both sides.
1200mm(W) x 750mm(H) x 300mm(D)
Garvanized steel plate cover attached to(by welding) silver rack
Garvanized steel plate cover attached to(by welding) silver rack