춘천 국립농산물품질관리원 강원지원 청사 신축 설계공모
National Agricultural Products Quality Management Institute
Location: 강원도 춘천시 동내면
Type: 공공업무시설(청사)
Year: 2025.11
Floor Area: 3,474.30m²
National Agricultural Products Quality Management Institute
Location: 강원도 춘천시 동내면
Type: 공공업무시설(청사)
Year: 2025.11
Floor Area: 3,474.30m²
심사평 (나승현 심사위원)
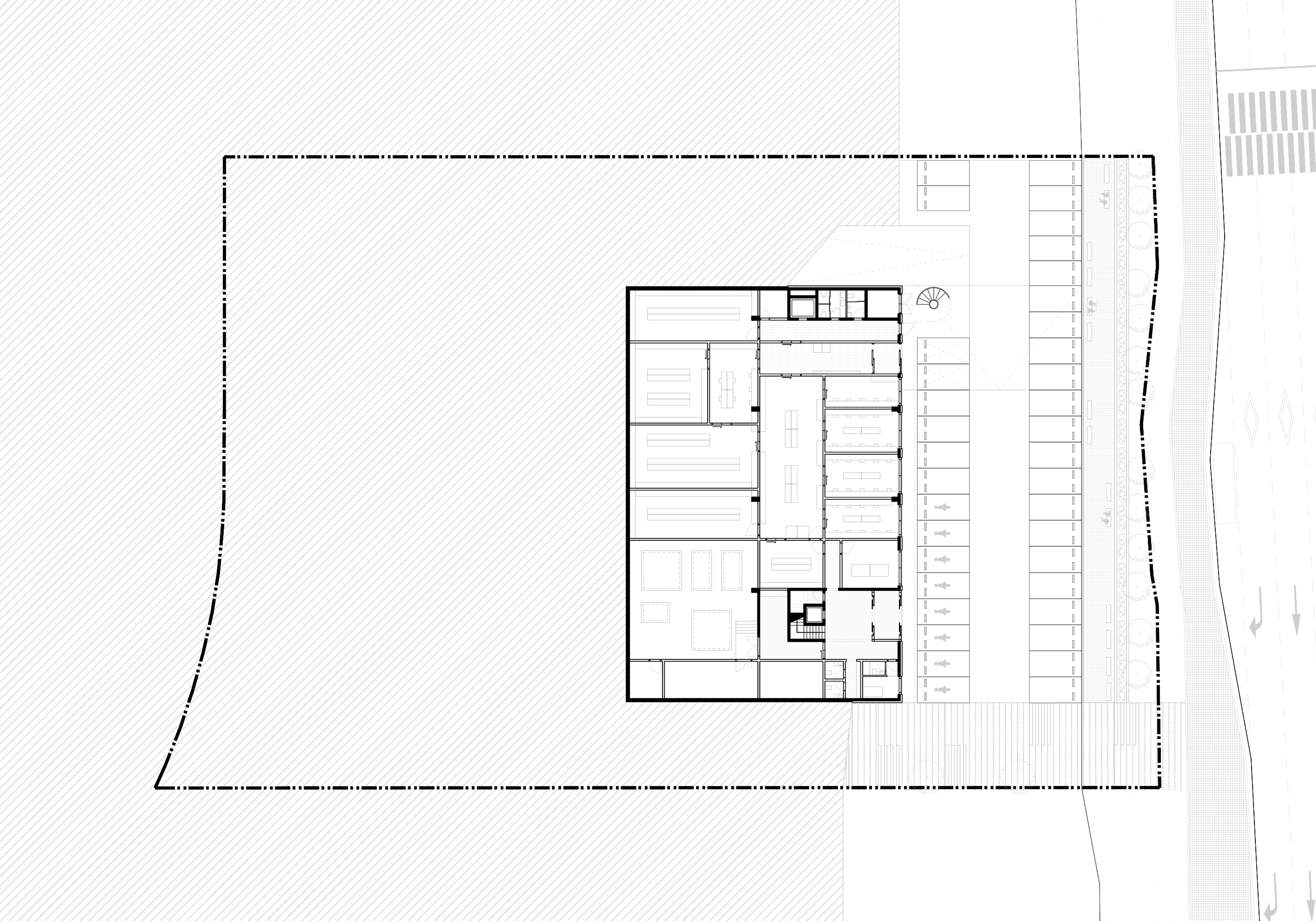
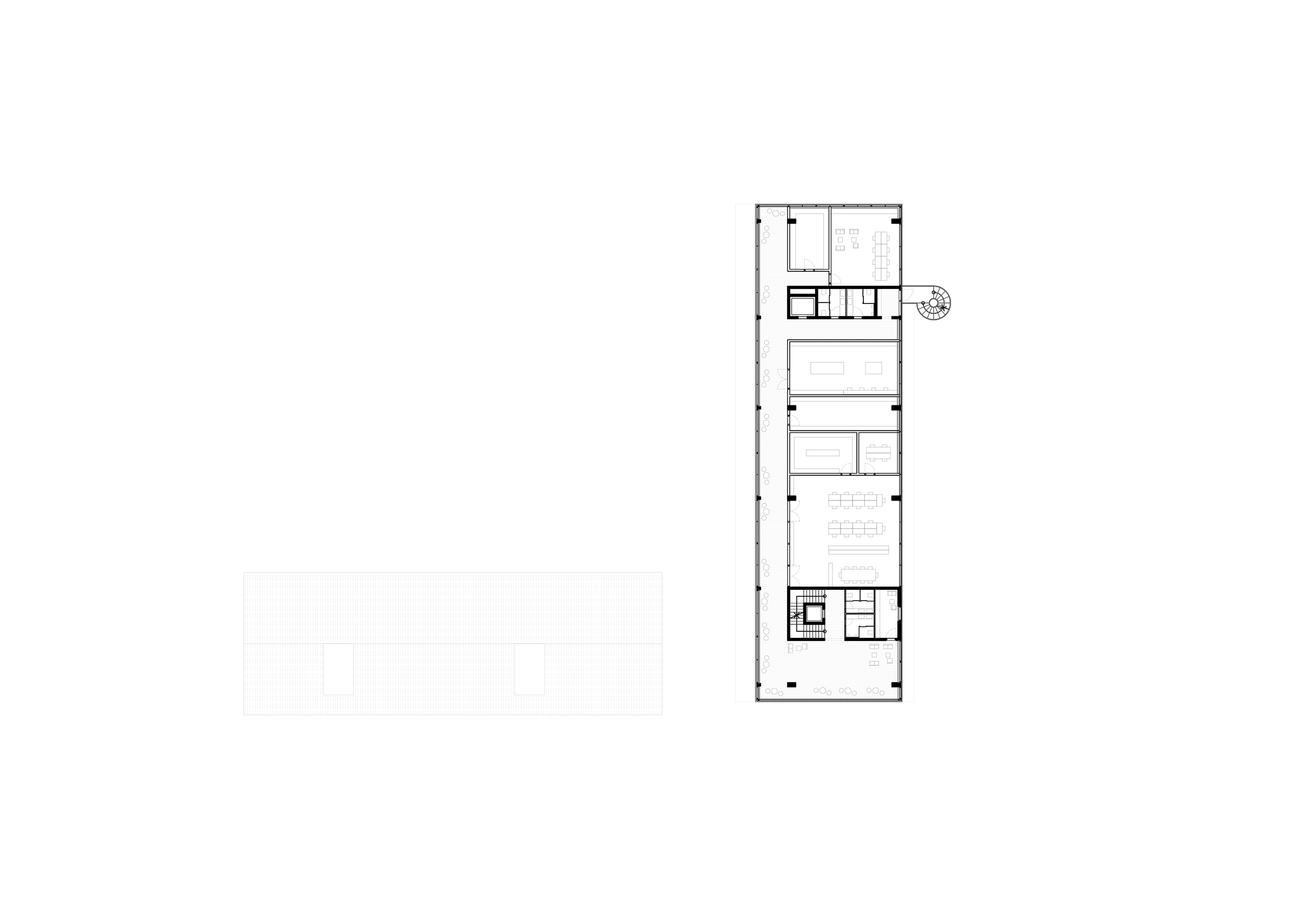
‘공개되지 않을 안 중 주목해야 마땅한 계획이라고 사료된다. 이 계획안은 작위적 정면성이나 상징성 부여를 거부하고 배치와 매싱만으로 대부분의 것을 해결해버렸다. 두 개의 다른 프로그램으로 규정되어 제시된 지침서, 일대일 대응에서 해법을 찾지 않았다. 혼재된 듯 하지만 실 쓰임을 상상하면 모두 온전히 작동하게 제시하고 있다. 바둑판처럼 뻔하게 구획되어있는듯하지만 네 면의 조건을 세심하게 해석해야 하는 여러 고민의 지점들에 대해 새롭게 바라보고 정의내린 특별한 계획안이다.
한껏 뒤로 물러서 남북방향으로 길고 놓여진 하나의 매스의 설정을 통해 하나의 연구소로 바라보고 있고 일반 방문객과 대면 편의가 필수적인 프로그램을 끄집어내어 새롭게 구성한 것 또한 설계자의 상상력에 그치지 않고 이럴 수 있음에 공감하게 하는 힘을 갖고 있다. 솔직하고 편안하게 전면에 방문객 주차, 그 영역에서 한개층 내려와 설정된 직원 및 작업 주차영역 설정 등은 어정쩡한 대지의 물리적 조건과 모호한 주변 개발 조건들을 한번에 극복하는 탁월한 제안이다. 임의로 조성된 기존 땅의 조건은 공사비 한계를 직시하고 적극적인 조정을 하지않겠다고 선언하고 있다. 하나의 연구동 개념으로 접근한 것 또한 그럴 수 있음으로 읽힌다. 서측면은 부차적 건축 외피 요소 없이 복도의 할애로 일사조건이 제약조건으로 작동하지 않게 하였고 동측의 근사한 풍경 접촉면을 대부분의 실에 최대한 부여한 장점으로 역전된다. 현실적인 법적 제약조건으로 보일 수 있는 오브제형 원형계단은 얼마든지 현 계획안내에서 솜씨있게 조정 가능해보이기에 약점으로 보지 않았다.’
‘공개되지 않을 안 중 주목해야 마땅한 계획이라고 사료된다. 이 계획안은 작위적 정면성이나 상징성 부여를 거부하고 배치와 매싱만으로 대부분의 것을 해결해버렸다. 두 개의 다른 프로그램으로 규정되어 제시된 지침서, 일대일 대응에서 해법을 찾지 않았다. 혼재된 듯 하지만 실 쓰임을 상상하면 모두 온전히 작동하게 제시하고 있다. 바둑판처럼 뻔하게 구획되어있는듯하지만 네 면의 조건을 세심하게 해석해야 하는 여러 고민의 지점들에 대해 새롭게 바라보고 정의내린 특별한 계획안이다.
한껏 뒤로 물러서 남북방향으로 길고 놓여진 하나의 매스의 설정을 통해 하나의 연구소로 바라보고 있고 일반 방문객과 대면 편의가 필수적인 프로그램을 끄집어내어 새롭게 구성한 것 또한 설계자의 상상력에 그치지 않고 이럴 수 있음에 공감하게 하는 힘을 갖고 있다. 솔직하고 편안하게 전면에 방문객 주차, 그 영역에서 한개층 내려와 설정된 직원 및 작업 주차영역 설정 등은 어정쩡한 대지의 물리적 조건과 모호한 주변 개발 조건들을 한번에 극복하는 탁월한 제안이다. 임의로 조성된 기존 땅의 조건은 공사비 한계를 직시하고 적극적인 조정을 하지않겠다고 선언하고 있다. 하나의 연구동 개념으로 접근한 것 또한 그럴 수 있음으로 읽힌다. 서측면은 부차적 건축 외피 요소 없이 복도의 할애로 일사조건이 제약조건으로 작동하지 않게 하였고 동측의 근사한 풍경 접촉면을 대부분의 실에 최대한 부여한 장점으로 역전된다. 현실적인 법적 제약조건으로 보일 수 있는 오브제형 원형계단은 얼마든지 현 계획안내에서 솜씨있게 조정 가능해보이기에 약점으로 보지 않았다.’