Haenam Workcation Center
Location: 해남군 송지면 송호리 550번지 일대 / Haenam Songji-myun Songho-ri
Type: 관광휴게시설
Year: 2024.12
Floor Area: 1,844m²
Location: 해남군 송지면 송호리 550번지 일대 / Haenam Songji-myun Songho-ri
Type: 관광휴게시설
Year: 2024.12
Floor Area: 1,844m²
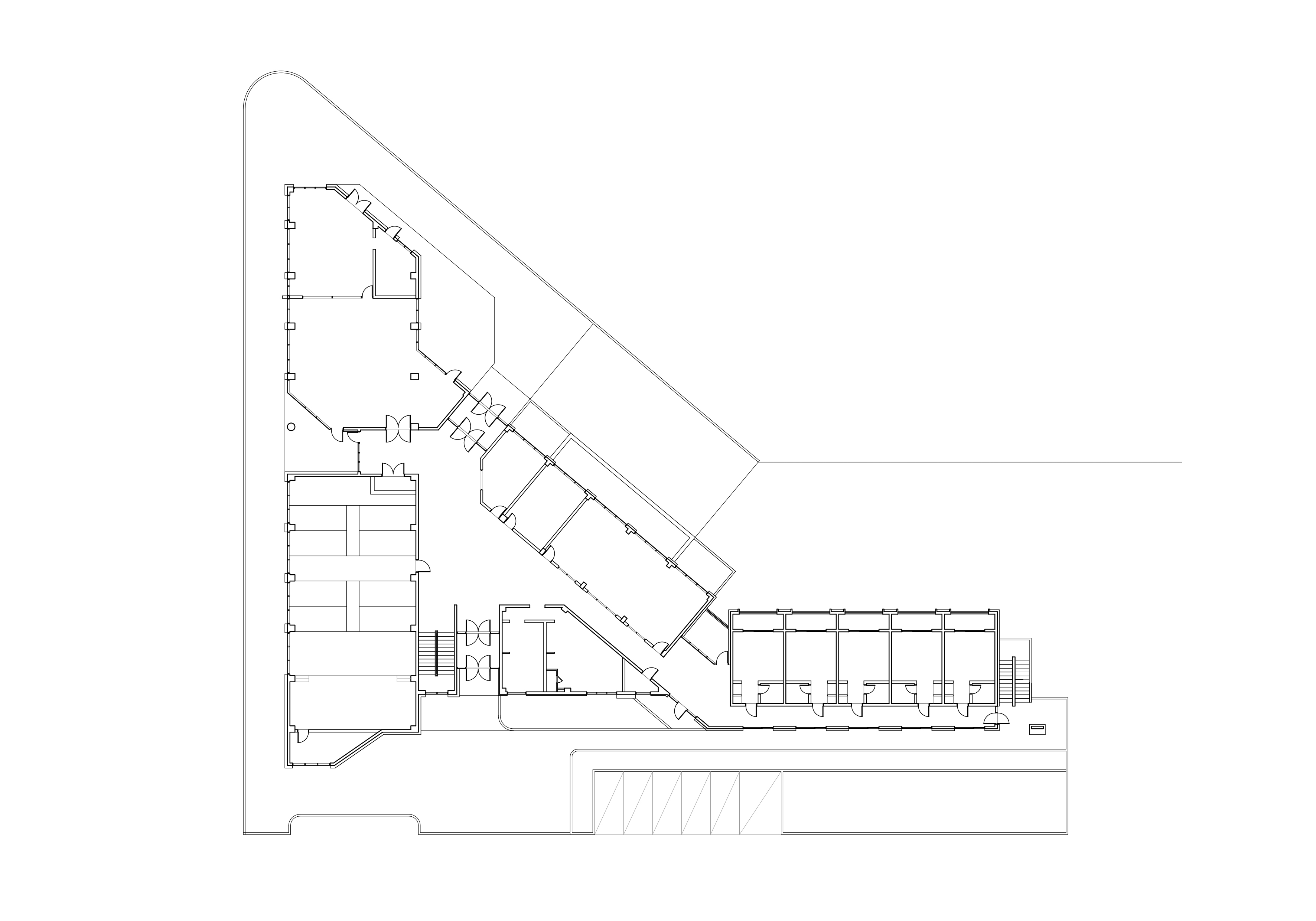
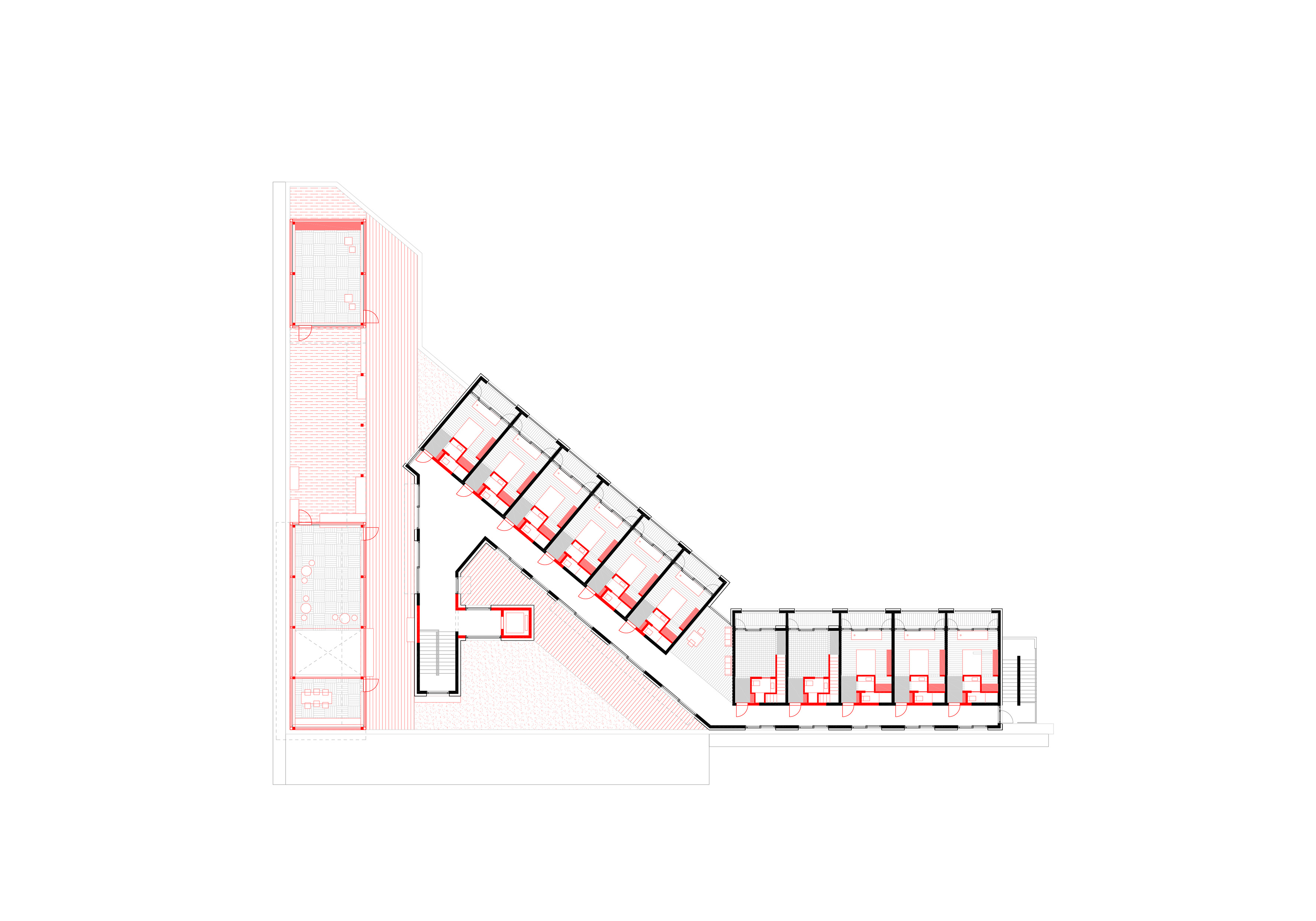
기존 건축물에 대한 리모델링 계획의 주안점은 한정된 예산을 효과적으로 사용하는 것, 그리고 기존 건축물을 어떻게 바라볼 것인지에 대한 태도일 것이다. 2011년 준공된 건축물이란 점을 고려하여, 기존 건축물의 구조 및 설비를 최대한 활용하고, 황토나라 테마촌 속의 일부로서 기존 건축물의 외형 또한 최대한 보존하고자 하였다.
남해안 바다를 조망하도록 배치된 기존의 객실은 그 자체로 워케이션 스테이 객실로서 사용이 가능해 보였으며, 기존 1층의 주방, 지하층 기계실 또한 활용이 가능하다고 판단하였다. 다만 서측 바다를 향해 소극적이었던 서측면에 신설되는 볼륨들을 제안하고 공공을 위한 프로그램을 배치하여 새로운 공공가로 및 경관축을 만들어 주고자 하였다.
가로경관에 대응하는 볼륨들은 신설되는 캐노피 구조체와 함께 가벼운 목구조로 계획하여 공사비 절감을 의도하였으며, 이를 통해 쓰임이 불분명하던 기존의 옥상공간에 황토나라 테마촌의 느슨한 밀도를 닮은 사이 공간들을 조성해 주고자 하였다.
The key focus of the remodeling plan for the existing building is the effective use of a limited budget and the attitude toward the existing structure. Given that the building was completed in 2011, the plan aims to maximize the use of its existing structure and facilities while preserving its exterior as part of the Hwangto Nara Theme Village.
The existing guest rooms, positioned to overlook the southern coast, were deemed suitable for use as workation stay accommodations. Additionally, the existing first-floor kitchen and basement mechanical room were considered reusable. However, the western facade, which had a relatively passive relationship with the sea, was reimagined with newly introduced volumes. These additions incorporate public programs to establish a new public streetscape and enhance the visual axis of the landscape.
The newly introduced volumes, responding to the streetscape, are designed as lightweight timber structures in conjunction with a newly installed canopy system, aiming to reduce construction costs. This approach also allows for the transformation of the underutilized rooftop space into a series of in-between spaces that reflect the relaxed density of the Hwangto Nara Theme Village.
남해안 바다를 조망하도록 배치된 기존의 객실은 그 자체로 워케이션 스테이 객실로서 사용이 가능해 보였으며, 기존 1층의 주방, 지하층 기계실 또한 활용이 가능하다고 판단하였다. 다만 서측 바다를 향해 소극적이었던 서측면에 신설되는 볼륨들을 제안하고 공공을 위한 프로그램을 배치하여 새로운 공공가로 및 경관축을 만들어 주고자 하였다.
가로경관에 대응하는 볼륨들은 신설되는 캐노피 구조체와 함께 가벼운 목구조로 계획하여 공사비 절감을 의도하였으며, 이를 통해 쓰임이 불분명하던 기존의 옥상공간에 황토나라 테마촌의 느슨한 밀도를 닮은 사이 공간들을 조성해 주고자 하였다.
The key focus of the remodeling plan for the existing building is the effective use of a limited budget and the attitude toward the existing structure. Given that the building was completed in 2011, the plan aims to maximize the use of its existing structure and facilities while preserving its exterior as part of the Hwangto Nara Theme Village.
The existing guest rooms, positioned to overlook the southern coast, were deemed suitable for use as workation stay accommodations. Additionally, the existing first-floor kitchen and basement mechanical room were considered reusable. However, the western facade, which had a relatively passive relationship with the sea, was reimagined with newly introduced volumes. These additions incorporate public programs to establish a new public streetscape and enhance the visual axis of the landscape.
The newly introduced volumes, responding to the streetscape, are designed as lightweight timber structures in conjunction with a newly installed canopy system, aiming to reduce construction costs. This approach also allows for the transformation of the underutilized rooftop space into a series of in-between spaces that reflect the relaxed density of the Hwangto Nara Theme Village.